Mutterhaus der Barmherzigen Schwestern, Freiburg
Mutterhauskirche der Barmherzigen Schwestern, Freiburg
St. Carolushaus, Freiburg
St. Ludwig, Malteserschloß Heitersheim
Kinder- und Jugendpsychatrie, St. Elisabethen Krankenhaus Lörrach
SALEM School of Nursing, Uganda
SALEM School of Nursing, Uganda
content slider
profil
team
projekte
engagement
impressum
neutralgrau
links
links
bpsfreiburg
ndengele02
bpsfreiburg
bildpunkte
bildpunktweiss
i
im
ima
imag
sitemap
bpslinien
Beratung und
Planung von
Sozialbauten GmbH
bpslogo
bpslogog
Beratung und
Planung von
Sozialbauten GmbH


Habsburgerstraße 33
79104 Freiburg
Telefon +49 (0)761 211677 0
Telefax +49 (0)761 211677 25
mail@bps-freiburg.de




China
Beijing Representative Office
No. 39 East Fourth Ring Middle Road,
Chaoyang district, Beijing 100025, P.R.C.
Office No. 722
salem
padrepio
ndengele
ouagadougou
durban

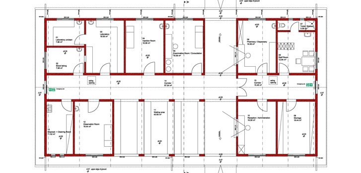
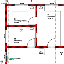
Health-centre / Day-care-clinic in Ndengele village, Tansania

ndengele
Beschreibung Hier hat die BPS ein Planungskonzept für das Genehmigungsverfahren zum Bau eines Health-centre / Day-care-clinic erstellt.